Loja à Venda ou Locação, 350 m² em Cerqueira César - São Paulo
Rua Melo Alves
| Valor | Locação | IPTU | Área | Quartos | Suítes | WC | Vagas |
|---|---|---|---|---|---|---|---|
| R$ 6.130.000,00 | R$ 52.475,00/mês | R$ 4.548 | 350.00 m² | -- | --- | 2 | 2 |
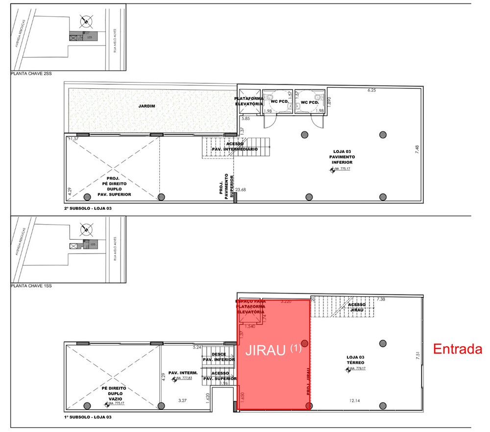
Loja com 349,83 m2 (sendo 39,21 m2 de jirau) em Jardins
Loja nova com 349,83 m2 (sendo 39,21 m2 de jirau) em Jardins, Área aprovada em prefeitura para construção de Jirau. Não será entregue com jirau ou escada de acesso. Entregue com piso em cimento liso desempenado, parede em concreto aparente e/ou pintura látex, Suvinil, Sherwin Williams e/ou pintura texturizada imitando concreto ou desempenho equivalente, teto laje de concreto aparente, 2 banheiros entregues com piso em porcelanato, paredes com pintura látex acrílico na cor branco, teto com pintura látex acrílico na cor branco e louças e metais Deca ou de desempenho equivalente, 2 vagas para utilitários de uso compartilhado entre as lojas, localizadas no 1º subsolo.
Agende uma visita.
Creci: 50.130-J
Evite cair em golpes: Nunca faça depósitos, transferências ou qualquer pagamento sem conferência e/ou visita no imóvel.
Características
Cintia Odas Consultora